Overview
- Updated On:
- October 23, 2025
- 1,000 ft2
Description
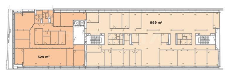
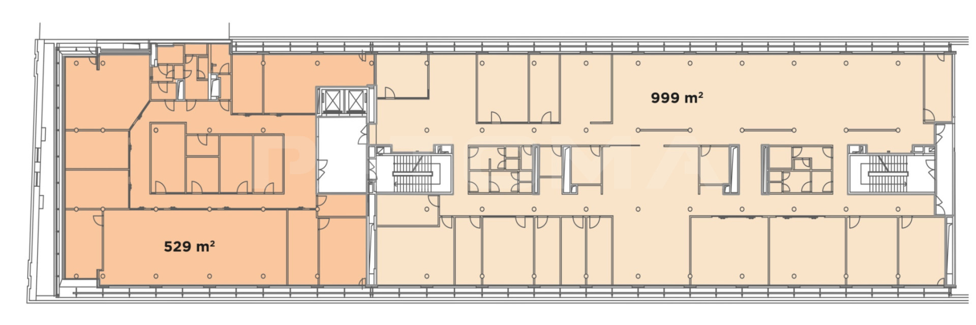
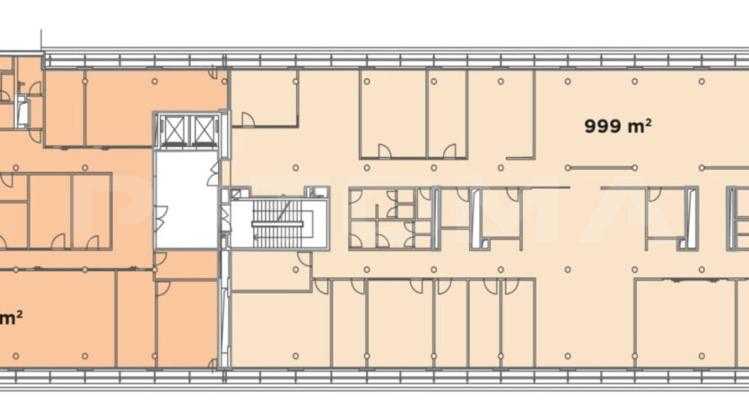
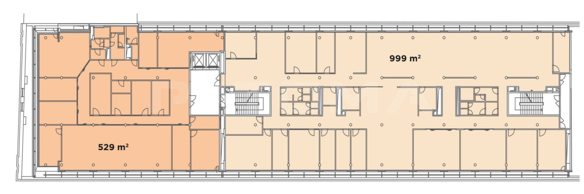
Nabízíme k pronájmu exkluzivní kancelářské prostory o celkové výměře 1000 m², které se nachází ve 3. NP budovy v žádané oblasti Karlína na ulici Křižíkova. Jedná se o openspace, který lze upravit dle potřeb budoucího nájemce.
Budova poskytuje vynikající infrastrukturu a služby pro nájemníky, včetně recepce, 24/7 ostrahy a možnost využití parkovacích míst. Kanceláře jsou plně klimatizované.
Lokalita nabízí výbornou dopravní dostupnost – v blízkosti je stanice metra, zastávky tramvají, což zajišťuje snadné spojení po celé Praze.
Kancelářské prostory jsou vybaveny samostatnými sociálními zařízeními, přístupem k internetu přes optiku a možností dispozičních změn podle potřeb nového nájemníka. Budova má také bezbariérový přístup a moderní technologické zázemí, včetně elektrického
K dispozici od 1/2026 s minimální dobou nájmu 3 roky.
Pro více informací a domluvení osobní prohlídky mě neváhejte kontaktovat.
Mé služby jsou pro Vás bezplatné.
~ Neplatíte provizi ~
- Condition: Dobrý
- Area: 1,000 m²
- Price: 18 €
- Principal and Interest
- Property Tax
- HOA fee


















