Overview
- Updated On:
- October 23, 2025
- 141 ft2
Description
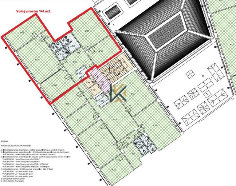
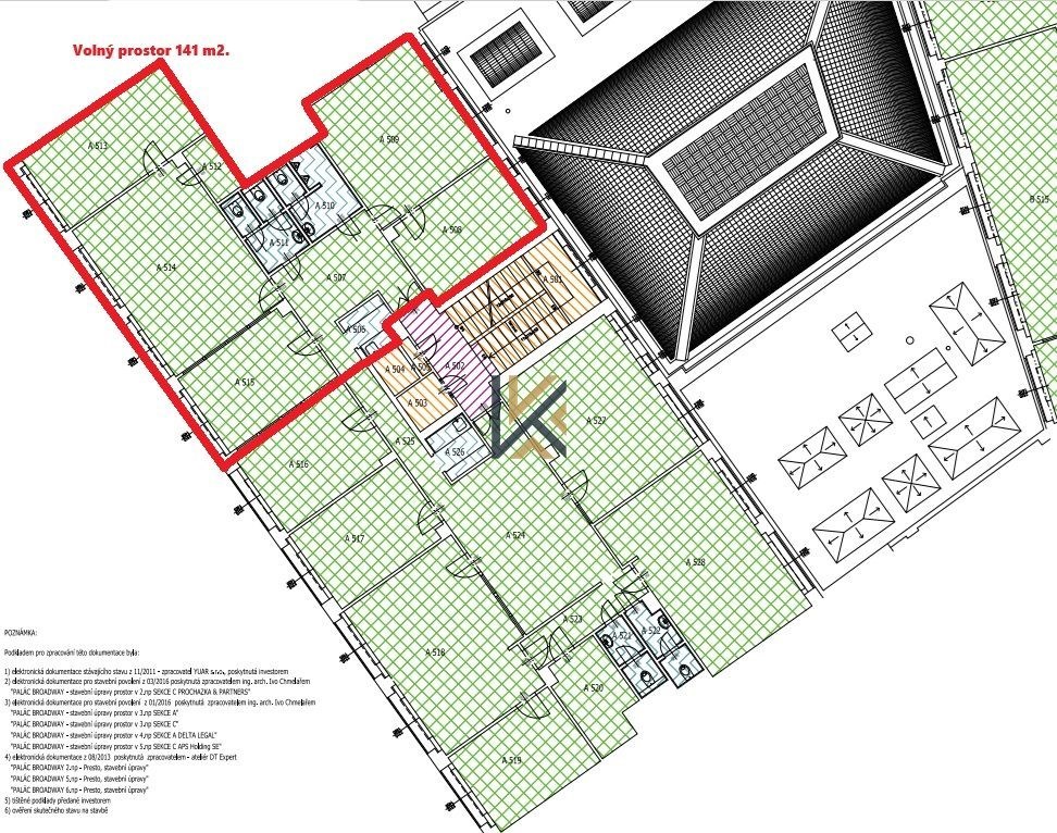
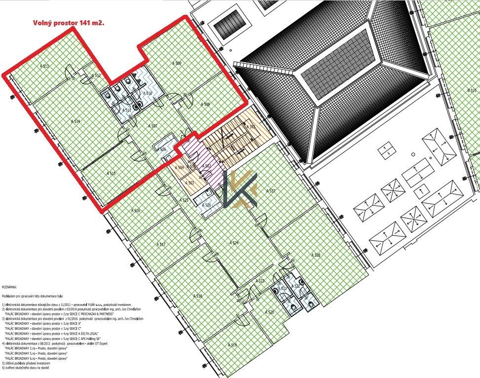
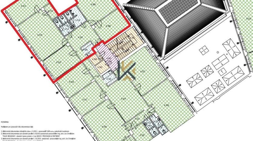
Neplatíte provizi ! Pronájem administrativního prostoru s vlastním zázemím o velikosti 141 m2 v 5. patře známé budovy Palác Broadway (vstup A s výhledem na Příkopy). Tento objekt se nachází v oblíbené administrativně obchodní čtvrti Prahy, v proluce mezi ulicemi Na Příkopě a Celetná. Velkou výhodou je snadná přístupnost MHD, stanice metra Můstek –trasa A, B a Náměstí Republiky – trasa B a tramvajová zastávka několika linek se nacházejí nedaleko od objektu.
Zdarma pro Vás připravíme nabídku kanceláří z více jak 300 budov po celé Praze – těšíme se na kontaktování
- Condition: Dobrý
- Area: 141 m²
- Floor: 5.
- Price: 15 €
Energy Class: C
A+
A
B
Energy class C
CD
E
F
G
H
Property Id: 35771
Price: $ 15
Property Size: 141 ft2
$ 1.00
per month
- Principal and Interest
- Property Tax
- HOA fee
$ 0.06
Sun
26
Oct
Mon
27
Oct
Tue
28
Oct
Wed
29
Oct
Thu
30
Oct
Fri
31
Oct
Sat
01
Nov
Sun
02
Nov
Mon
03
Nov
Tue
04
Nov
Property Reviews
No reviews found.
You need to login in order to post a review
Similar Listings
Pronájem kanceláře 143 m²Třanovského, Pr...
$ 39,000
Kanceláře se nacházejí v uzavřeném areálu s ostrahou v zeleni se vzrostlými stromy a jezír ...
143 ft2details
Pronájem obchodu 378 m²Olomoucká, Loštic...
$ 350
V zastoupení majitele nabízíme k pronájmu atraktivní komerční prostory v připravovaném ret ...
378 ft2details










