Overview
- Updated On:
- October 23, 2025
- 278 ft2
Description
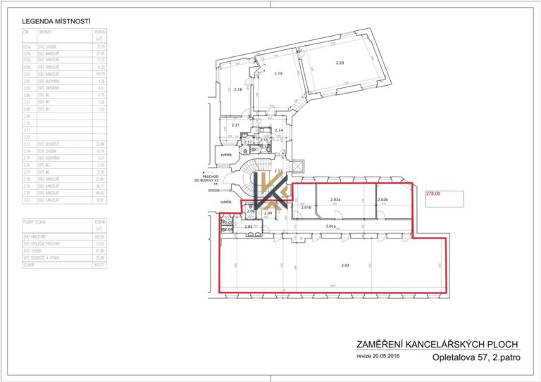
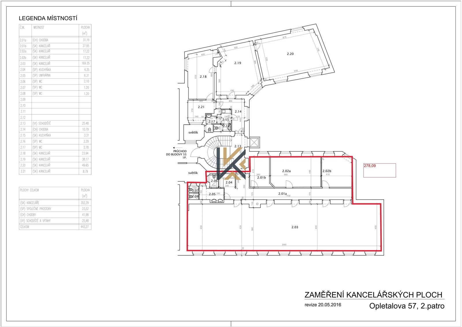
Neplatíte provizi ! Pronájem kancelářské jednotky s vlastním zázemím o velikosti 278 m2 ve 2. patře historické budovy v ul. Opletalova. Dispozičně nyní otevřený celek (není problém rozčlenit na menší kanceláře). , 2 zasedací místnosti a několik menších jednotek pro volání. Jednotka má vlastní WC, sklad i kuchyňku. Budova nabízí centrální recepci, přístup 24/7, možnost umístění sídla společnosti. Budova má skvělou polohu v centru města. V pěším dosahu trasa metra “B” Náměstí republiky, “C” Hlavní nádraží a vlakové zastávky Masarykovo a Hlavního nádraží Praha. Ideální varianta pro umístění hlavního sídla společnosti v centru Prahy.
Další prostory v budově: 36 m2.
Zdarma pro Vás připravíme nabídku kanceláří z více jak 300 budov po celé Praze těšíme se na kontaktování.
- Condition: Dobrý
- Area: 278 m²
- Floor: 2.
- Price: 79,256 Kč
- Principal and Interest
- Property Tax
- HOA fee














