Overview
- Updated On:
- October 22, 2025
- 83 ft2
Description
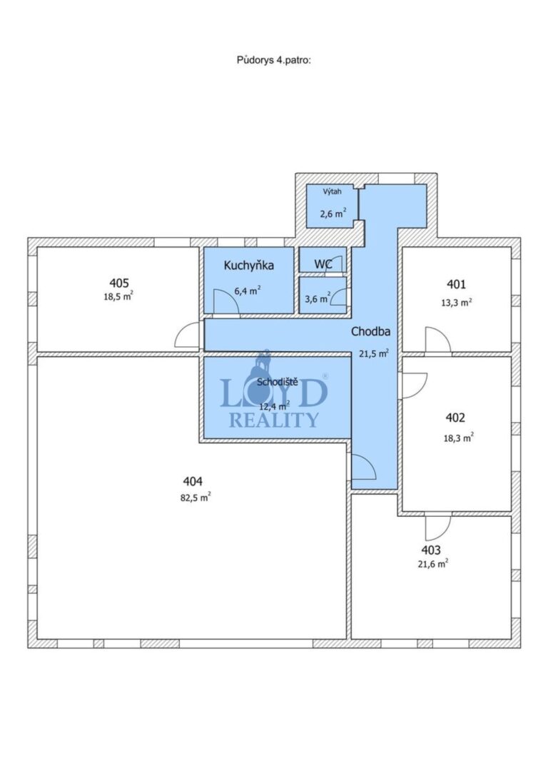
Velká kancelář – jednací místnost, školící místnost, open space – o ploše 82,5 m2
Kuchyňka a sociální zařízení na patře.
4. patro budovy s výtahem.
Plánek v galerii, místnost č. 404.
Administrativní budova s výtahem, recepce v přízemí.
Kanceláře mohou být na přání a v ceně nájmu vybaveny nábytkem, na podlahách jsou koberce.
Telefonní a datové rozvody v každé kanceláři.
Jižně orientované místnosti mají klimatizaci.
Úklid společných prostor v ceně nájmu.
Parkování v okolí budovy.
Dobrá dopravní dostupnost včetně MHD a vlaku.
Všechny služby, včetně vytápění a elektrické energie, v paušální platbě 100 Kč/m2/měsíc.
Nájemce neplatí provizi realitní kanceláři!
- Condition: Bezvadný
- Area: 83 m²
- Floor: 4.
- Price: 150 Kč
Energy Class: F
A+
A
B
C
D
E
Energy class F
FG
H
Property Id: 34095
Price: $ 150
Property Size: 83 ft2
$ 1.00
per month
- Principal and Interest
- Property Tax
- HOA fee
$ 0.58
Sat
25
Oct
Sun
26
Oct
Mon
27
Oct
Tue
28
Oct
Wed
29
Oct
Thu
30
Oct
Fri
31
Oct
Sat
01
Nov
Sun
02
Nov
Mon
03
Nov
Property Reviews
No reviews found.
You need to login in order to post a review
Similar Listings
Pronájem kanceláře 270 m²U průhonu, Prah...
$ 15
Neplatíte provizi ! Administrativní komplex A7 Office Center nabízí kancelářské prostory 2 ...
270 ft2details
Pronájem hotelu a penzionu 48 m²Barrando...
$ 28,050
Apartmány k dlouhodobému ubytování na Barrandovských terasáchV zastoupení majitele nabízím ...
48 ft2details


















