Overview
- Updated On:
- October 21, 2025
- 378 ft2
Description
V zastoupení majitele nabízíme k pronájmu atraktivní komerční prostory v připravovaném retail parku v Lošticích, na ulici Olomoucká. Projekt realizuje tradiční výrobce světoznámých olomouckých tvarůžků A.W. spol. s r.o.
Nabízený prostor
Celková výměra: 378 m²
Umístění: 2. NP novostavby
Standard: keramická dlažba, sádrokartonové příčky, výmalba, kazetové podhledy
Možnost úprav dispozice dle požadavků nájemce ve spolupráci s projektanty ještě ve fázi výstavby
Přístup zajištěn po schodišti a také nákladním a osobním výtahem
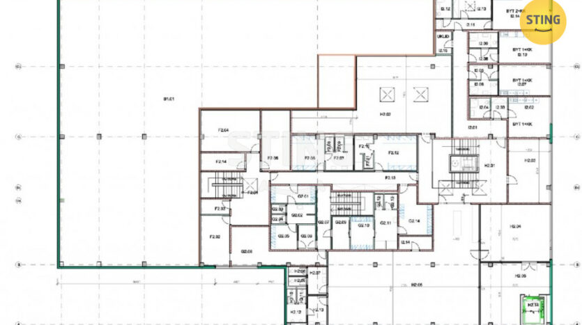
Dispoziční možnosti (viz. půdorys):
H2.02 – zázemí pro zaměstnance, kancelář, skladové prostory (se světlíky, u schodiště a výtahu)
H2.03 – salonek / kancelář
H2.04 – kuchyně a přípravna s napojením na nákladní výtah + hlavní prostor restaurace k sezení
H2.06 – H2.11 – toalety pro návštěvníky
H2.12 – úklidová místnost
Vhodné využití:
Gastro provoz (restaurace, bistro / rychlé občerstvení, kavárna / cukrárna)
Technické podmínky:
Prostor bude předán ve stavu Shell & Core
Připravenost na napojení odpadu a vody dle projektu nájemce
Přívod elektro do hlavního rozvaděče + podružné měření
Vytápění/chlazení a vnitřní příčky řeší nájemce dle vlastního projektu
Lokalita a výhody:
Loštice (okr. Šumperk, Ol. kraj)
Výborná dostupnost: blízký sjezd z dálnice D35
3000 obyvatel města + spádové obce v okolí + významná turistická lokalita
V areálu retail parku: prodejna Penny Market, firemní prodejna A.W. spol. s r.o., byty
Dostatečně kapacitní parkoviště pro osobní vozy včetně dobíjecích stanic pro elektroauta
Harmonogram:
Zahájení výstavby: 05/2026
Dokončení a kolaudace: 05/2027
Nájemní podmínky:
Nájemné + energie (dle spotřeby)
Provize RK: jeden měsíční nájem + DPH
Zajistěte si své místo v novém moderním retail parku s výbornou dostupností a atraktivní polohou.
Pro více informací či sjednání schůzky nás neváhejte kontaktovat.
- Condition: Projekt
- Area: 378 m²
- Price: 350 Kč
- Principal and Interest
- Property Tax
- HOA fee
















