Overview
- Updated On:
- October 23, 2025
- 458 ft2
Description
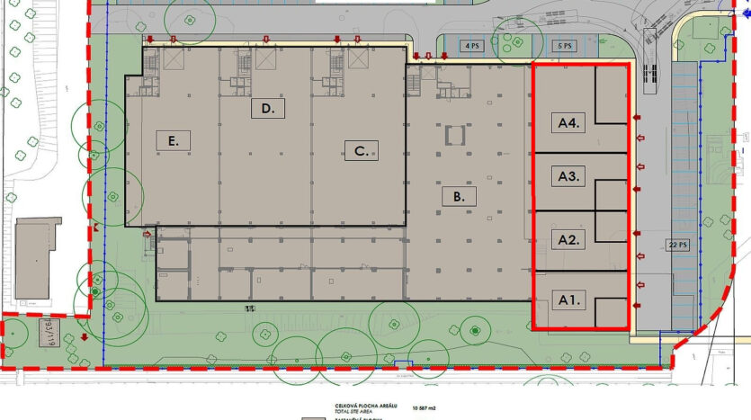
Pronájem skladu, výrobních prostor nebo prodejních prostor 458 m² (jednotka A.4). Praha 10 – Malešice.
V zastoupení majitele a bez provize nabízíme nebytové prostory v menším uzavřeném areálu, který prochází kompletní rekonstrukcí a dostavbou. Tento prvotřídní projekt nabízí různé flexibilní typy prostor (SBU) dle Vašich potřeb – sklady, výrobní prostory, showroom, kanceláře, vývoj, laboratoře, atd., umístěné v přízemí industriální budovy, kancelářské prostory jsou ve dvou podlažích.
– plánované dokončení do poloviny roku 2027
– 261 m² industriálních prostor se světlou výškou 7,5 m
– kancelářské prostory 79 m² v přízemí + 118 m² v patře propojených schodištěm
– zásobovací vjezd v úrovni vozovky
– nosnost podlah 5t/m²
– osobní vstup
– parkování před budovou
– výborná dostupnost MHD
– celková pronajímatelná plocha v jednom celku až 1376 m² (celá budova A)
– úpravy i dělení prostor dle potřeby
Cena nájmu je individuální, dle dalších podmínek smlouvy + služby.
Fotografie jsou ilustrační. Pro více informací o tomto projektu nás neváhejte kontaktovat, rádi zodpovíme Vaše dotazy.
- Condition: Novostavba
- Area: 458 m²
- Principal and Interest
- Property Tax
- HOA fee


















