Overview
- Updated On:
- October 22, 2025
- 40 ft2
Description
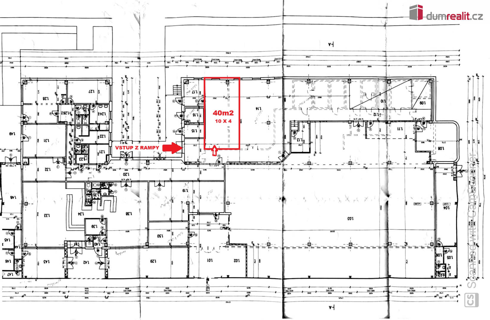
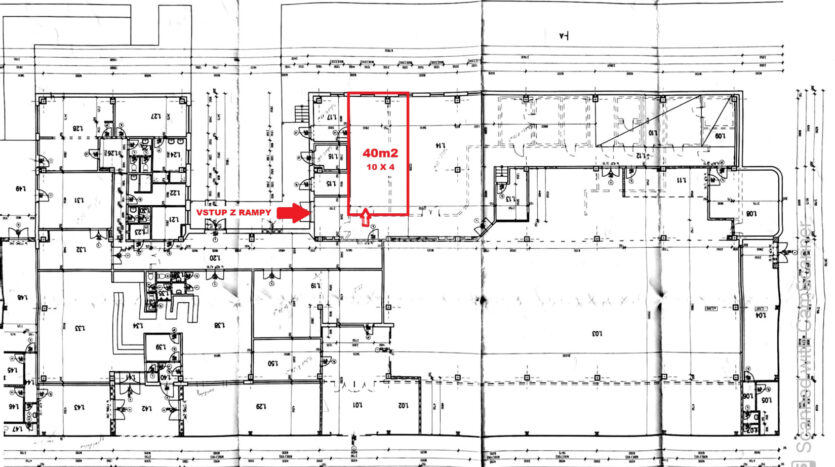
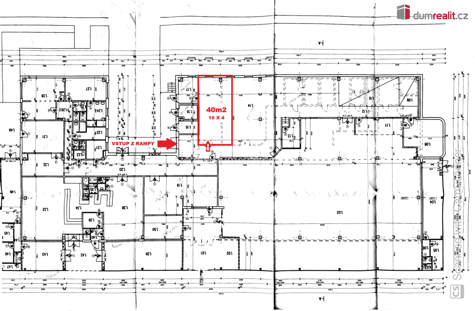
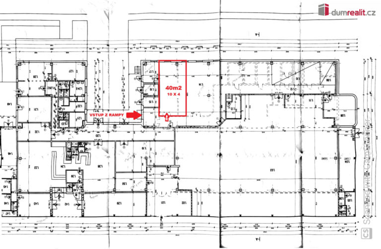
Dumrealit.cz Vám zprostředkuje pronájem skladovacího prostoru 40m2, obdélníkového tvaru 4x10m. Nabízený prostor se nachází v budově v centru sídliště Na Valtické, ale kousek od hlavní cesty. Velkou výhodou je s neomezený přístup 24/7, možnost využití nákladní rampy a dostatečně velkého prostoru i pro nákladní auto v případě nakládky či vykládky. Nájemné činí 8.000,- Kč měsíčně. Prostor disponuje vlastním podružným měřičem elektřiny, takže spotřeba bude vyúčtována dle skutečné spotřeby nájemníka. Při podpisu smlouvy bude požadována úhrada vratné kauce ve výši 2měsíčních nájmů včetně energií, nájemné 8.000,- Kč, záloha na elektřinu(výše dle dohody a způsobu využití prostoru) a provize RK ve výši 1měsíčního nájemného +DPH. Prostor je volný, k pronájmu ihned. V budově se nabízí více prostorů k pronájmu, pokud potřebujete jinou velikost, určitě se zeptejte a rádi Vám sdělíme další informace. V případě dotazů či domluvení prohlídky nás kontaktujte. Ev. číslo: 651230. Bližší informace Vám sdělí Petra Baťková, 731 193 777, batkova@dumrealit.cz
- Condition: Dobrý
- Area: 40 m²
- Price: 8,000 Kč
- Principal and Interest
- Property Tax
- HOA fee










